Wilwood's Classic Series front 6-piston disc brake kits for Chevrolet / GMC ½ ton trucks from 1964 to1970), offer disc brake upgrade solutions for OEM drum spindles.
A completely new kit design, featuring a one piece 11.86" x 1.25” rotor and hub assembly. Based on the venerable Forged Billet Narrow Superlite caliper, these versatile kits are easily optioned to suit the braking requirements and style preferences for a daily driver or the most discriminating show enthusiast.
Intended vehicle applications require no modifications for installation, and provide plenty of clearance inside popular 15" wheels. FNSL6R 1 piece kits can be used with either manual or power boost master cylinders.
Kits come complete with choice of red or black calipers, rotors and hub assembly, brackets, hardware and line kit.
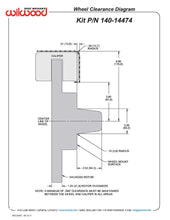
THIS BRAKE KIT HAS A HUB OFFSET OF: +.41"
This Hub Offset will move the wheels inward or outward from the fender by this amount on each side of the vehicle
You may also be interested in a front brake line kit to top-off the installation, located here.
Installation Instructions - note, verify wheel clearance dimensions before ordering or installing
*Please Allow 1 Week for Delivery*







