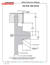
This kit is configured for dedicated road racing on all 1982-1992 Camaros and Firebirds. The four piston FSL4R/ST calipers used in this kit feature a forged aluminum body with a Type III Mil-Spec hard anodized, medium gray color finish. Hard anodizing provides superior wear resistance in the piston bores, and high resistance to abrasion and corrosion throughout. Thermlock® pistons are used to reduce heat transfer from the pads to increase fade resistance, and to extend service life by decreasing temperatures in the caliper body, fluid, and seals. Internal damper springs and controlled retraction, high-temperature piston seals assure consistent pedal height from start to finish. Caliper piston volumes are matched for full compatibility with the OE power brake booster and master cylinder, and are easily configured with manual brake conversions and balance bar pedals using appropriately sized master cylinders. Spec37 alloy GT competition series 13.06” diameter directional vane lug mount rotors provide high cooling efficiency with rugged durability and thermal stability in sustained high heat competition. Forged aluminum dynamic lug mount hats for mounting the rotors to the OE hubs. Mounting brackets, including all premium grade fasteners, secure the calipers to the spindles in the stock location, without the need for modifications. This championship proven system is completed with high temperature, high friction, endurance race compound pads selected specifically by application. Stainless steel braided flexlines are included in each kit to complete the installation.




