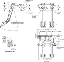
Wilwood's new Swing Mount Tandem Brake and Clutch Assembly simplifies installing a tandem outlet, single pushrod brake master cylinder in conjunction with a hydraulic clutch master cylinder in a forward position outside the firewall. It features a lightweight aluminum frame, with high strength reinforced I-Beam style forged pedal arms in either 6.25:1 or 7.00:1 ratios. The non-skid waffled pedal pads can be laterally adjusted for driver preference or clearance as necessary. Will fit most tandem cylinders available with 3.25 horizontal bolt spacing. Pedal base has additional mount points for vertical mount 2.50” spacing tandem master cylinders using 5/16-18 studs (not supplied with pedal assembly). Clutch master cylinder mount is also a 2.25” vertical mount and will use most popular single outlet cylinders.
340-14360

