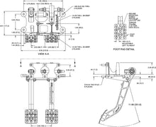
Wilwood's Tru-Bar balance bar system is now available in a Reverse Swing mount pedal with a 6.25:1 ratio. Tru-Bar pedals utilize a fixed trunnion bearing in the pedal arm, with spherical rod-end bearing pushrod attachments. They provide ultimate precision, control, and adjustment of the brake bias on race prepped vehicles. The new Tru-Bar pedals utilize the same chassis and master cylinder mounting as all Wilwood balance bar style pedals. A stronger and larger diameter 7/16-20 bar provides quicker adjustment and features a shouldered 3/8” diameter end to attach the standard remote adjuster cable to deliver professional, championship caliber performance. Wilwood's Tru-Bar balance bar utilizes a fixed trunnion bearing in the pedal arm with spherical rod ends at the pushrod connections. It provides the ultimate in precision bias adjustment, control, and fine tuning on race prepped vehicles equipped with twin brake Master cylinder systems and proportionately sized calipers.
340-15074

