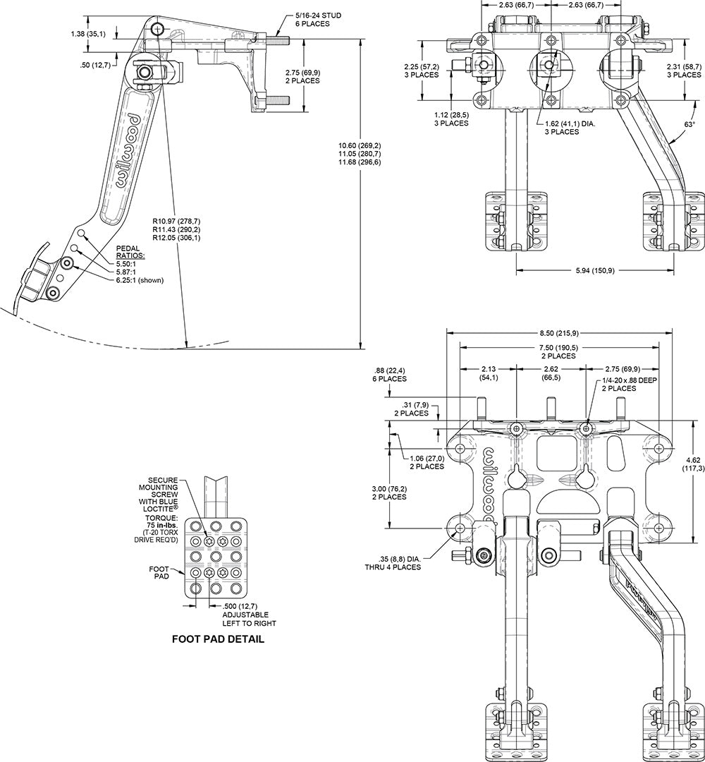
Adjustable ratio balance bar brake pedal with offset clutch pedal, in a forward swing hanging assembly. Pedal head adjusts vertically to provide a 5.50, 5.88, or 6.25:1 ratio for more feel or less pedal effort. A clutch master cylinder and two brake master cylinders mount to the assembly through the firewall, with an adjustable balance bar providing front to rear brake bias fine tuning. The non-skid waffled pedal pads can be laterally adjusted to be from 5 to 7 inches on center for driver preference. The pedals feature a lightweight aluminum frame, with high strength reinforced I-beam style forged pedal arms. The balance bar incorporates a positive detent stop every full turn to maintain adjustment position and can be locked in place with the included jam nut, or used with an optional remote knob for quick on-track adjustments. A pin and clevis pushrod attachment system ensures the smallest possible misalignment angle for bind free operation through the entire range of travel. This pedal accepts any three Wilwood 2.25 inch vertical mount flange single outlet master cylinders, available separately in a variety of styles and bore sizes.
340-16350



