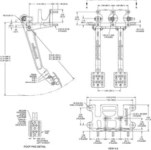
Adjustable ratio balance bar brake pedal and clutch pedal combo, in a reverse swing hanging assembly. Pedal head adjusts vertically to provide a 5.50, 5.88, or 6.25:1 ratio for more feel or less pedal effort. A clutch master cylinder and two brake master cylinders mount to the assembly, with a friction-free, trunnion based adjustable Tru-Bar balance bar providing front to rear brake bias fine tuning. The non-skid waffled pedal pads can be laterally adjusted to be from 3 to 5 inches on center for driver preference. The pedals feature a lightweight aluminum frame, with high strength reinforced I-beam style forged pedal arms. The Tru-Bar incorporates a positive detent stop every full turn to maintain adjustment position and can be locked in place with the included jam nut, or used with an optional remote knob for quick on-track adjustments. Tru-Bar pedals utilize a fixed trunnion bearing in the pedal arm, with spherical rod-end bearing pushrod attachments reducing compliance and friction for more accurate brake feel. Tru-Bar pedals utilize the same chassis and master cylinder mounting as Wilwood balance bar style pedals. This pedal accepts any three Wilwood 2.25 inch vertical mount flange single outlet master cylinders, available separately in a variety of styles and bore sizes.
340-16386

